Announcement

Collapse
No announcement yet.

CIOPH : New era of Home Entertainment Starts Now- One closer to my youth's dream

Collapse
X
 
  • Filter
  • Time
  • Show
Clear All
new posts

  • #16
    Thanks Donald! I already have a trump monitor in my rack. Fox news on 24/7.

    On the subject of the merits of the kaleidescape system I see new users waxing poetically about comparisons to APPLE TV, Really?, it delivers solid HDR10 and possibly 10+ soon, It allows you to create scripts which is the only way to consume immersion in overdose quantities a huge factor, finally it trounces any movie playback device ANY AND ALL in the quality of the clocking of the audio. Why is this important?  because it delivers the most impressive multichannel directional bass.  Apple Tv sounds like sh_t.
    Attached Files
    https://twitter.com/CINERAMAX<br /><br />https://WALLSCREEN-SKYLOUNGES.COM

    Comment


    • #17
      We are beginning to get some renders, many changes to come. There are curtains that draw in the middle allowing for a nice window while controlling front and rear early reflections.
      Attached Files
      https://twitter.com/CINERAMAX<br /><br />https://WALLSCREEN-SKYLOUNGES.COM

      Comment


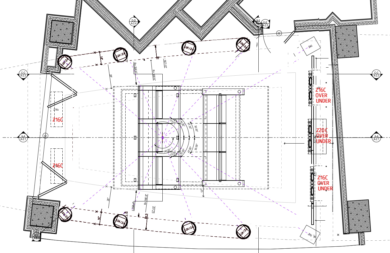
      • #18
        Autocad Viewer shots, sometimes i just design by instinct, it is when you actually can see the layout that you realise what an awesome payout my little gambles often yield. I have often said that my  greatest breakthroughs oft happen by accident, i like where SOLFAR IS GOING.


        When i started the high end video Industry in the early 1990's by deploying the Barco 9 inch Crt and First Faroudja LD-100 doubler which Ives built with the idea to replace my IKEGAMI ASC-1050, because of a superior chroma decoder plus 3-2 pulldown, I NEVER EVER INTENDED that technology to be used with a unity gain screen...I was after a high ansi , high MTF, highly saturated HDR LIKE enhanced large screen images and that is why I exclusively populated Miami with Optical Rear Projection, Concave screens and custom ray traced TORUSES.

        Having TOILED and perfected these solid giant screens' surround-sound fields to not only sound better than a movie theater but as an immersive  soundfield that emulated what a musician hears when he is playing  surrounded by the band, it makes me laugh about the pathetic STUPID STUPID STUPID notion that you need a perforated cinema screen for best sound. AU CONTRAIRE I have tried it both and my best work is in NON ACOUSTICAL TRANSPARENT screens, these 25 years between the mid eighties forward perfecting sound for ROOMS WITH A DOUBLE VIEW, is just like a long piece of runway that I stashed away in the years doing acoustically transparent screens. I am now sorry I ever did acoustically transparent  screens...Except of course the RealD ULTIMATE screen the only such kind screen I will ever do projection again with.

        THIS INDUSTRY NEEDS RESCUING, it starts next CEDIA at SOLFAR.

        Attached Files
        https://twitter.com/CINERAMAX<br /><br />https://WALLSCREEN-SKYLOUNGES.COM

        Comment


        • #19
          Looking good Peter, I like the audio layout. No weak points here, the system should deliver the goods.

          Comment


          • #20
            There are ceiling speakers in that blue box? Or are they all in the columns?

            Comment


            • #21
              Thanks Pix , Donald you are right. None of those height channels ( which i need to push up further inside the columns to gain separation but need to wait on the ac ducting to find the limit0are for ATMOS there are a number of mixed channels in AUROMATIC (which you need for some type of multichannel audio only music and for movie soundtracks preceding the 60's.), also you need to expAND THE ENVELOPMENT OF THE UPMIXING provided by NEURAL-X limited to 11 channels , in the past I let Trinnov and Walter do that via plain arraying, we will radically re-assign those first 11 channels first and then introduce mixed channel derivatives in SOLFAR- Ill be kicking both Artnaud's and Wa;lters butts with my version of neural-x, my approach they could not see coming with the hubble telescope. Super radical next gen engulfing Neural -x. BTW That overhead canopy element nor the platform have been yet designed and modelled only sketched, but there are 4 pairs ATMOS MOAB overheads positioned at the most easily distinguishable (because discrete overhead sound is very hard to pinpoint except when at specific angles that I should patent but won't).



              As it turns out every single speaker in Solfar is bespoke to my specifications, built in England by Quested an illustrious recording engineer the first to design and install a QUADRAPHONIC studio in the UK ( and this is super crucial because if the system cannot do justice to quadraphonic it is impossible that it will do ATMOS remotely ok, shoot yourself in the head!, he is an expert in near-mid field loudspeaker systems, has a platinum ear for which he is the designer of all the loudspeakers Hans Zimmer uses for Movie Music scoring, and other industry heavies.

              The sound is very similar to alcons, but alcons also caters to far field and large venues which i have found some elements do not work well in the crucial near-mid, or perhaps it is not the right form factor for where is ee home cinema going. I still love many of their offerings and i will have them over here in a few weeks to share with them my vision and see if given an ample time frame they will step up to the bat for my miniaturised large format IN YOUR ANYONE's Flat' LIVING ROOM system that I want them to build for Miami. We will see, the kaleidescape scripted scene of demo material in the very least will open their eyes on how i envision the future of condominium cinemas, which play at extraordinary loud levels on afternoons only and do not bother the neighbors a great most of the time. I'm breaking norm with 2 dozen conventions, let's see what they say about the demo (i will certainly put youtube of their critique of my proto system either way online in this thread). March 13-14.


              Back to Quested all of these qualifications unique to Roger complement new lessons learned from my series of TRINNOV maximum channel count system deployments of  these SOLFAR will be my 6th.

              more later see ya... Yes I haVE DESIGNED these seats in a series of 7 iterations, they should be the optimal ergonomics for a PLF stadium raking space.

              Attached Files
              https://twitter.com/CINERAMAX<br /><br />https://WALLSCREEN-SKYLOUNGES.COM

              Comment


              • #22
                https://youtu.be/j0yFHrpaUnI

                from a form follows function immersive ergonomics angle Roger is crafting a record amount of 9 bespoke speaker models at SOLFAR, the CALIFORNIA HOME CINEMA OF THE FUTURE.
                Attached Files
                https://twitter.com/CINERAMAX<br /><br />https://WALLSCREEN-SKYLOUNGES.COM

                Comment


                • #23
                  Now I am happy with the shape of the immersion platform.

                  Attached Files
                  https://twitter.com/CINERAMAX<br /><br />https://WALLSCREEN-SKYLOUNGES.COM

                  Comment


                  • #24
                    Deluge of hdr content at Kaleidescape, those titles that do not have an atmos track, but were shown in atmos in the cinema sound phenomenal inq Neural-X with the capacity to have neural-x rendered to the vog, the ATMOS similarity in that case will be uncanny.


                    But also many many legacy movies from every decade back to the 60's and perhaps the fifties sound fantastic in Neural-X, I call these PLUMS.

                    It is stupid to watch the same movie over and over again, it is HIGH CULTURE to create scripted demoes of the most immersive looking and sounding short clips and chain them one after another. Probably the most epicurean experience known to man. I have put together such system and have been cateloguing demo scenes for 2.5 years. THE ULTIMATE IMMERSION DEMO MACHINE. About 75k with content.
                    Attached Files
                    https://twitter.com/CINERAMAX<br /><br />https://WALLSCREEN-SKYLOUNGES.COM

                    Comment


                    • #25
                      1- Harry Potter and the Sorcerer's Stone Fantasy PG Chris Columbus 2001 4K HDR

                      2- Harry Potter and the Chamber of Secrets Fantasy PG Chris Columbus 2002 4K HDR

                      3- Harry Potter and the Prisoner of Azkaban Fantasy PG Alfonso Cuarón 2004 4K HDR

                      3:10 to Yuma Western R James Mangold 2007 Blu-ray quality

                      4- Harry Potter and the Goblet of Fire Fantasy PG-13 Mike Newell 2005 4K HDR

                      5- Harry Potter and the Order of the Phoenix Fantasy PG-13 David Yates 2007 4K HDR

                      The 5th Wave Action PG-13 J Blakeson 2016 4K HDR

                      6- Harry Potter and the Half-Blood Prince Fantasy PG David Yates 2009 4K HDR

                      7- Harry Potter and the Deathly Hallows: Part 1 Fantasy PG-13 David Yates 2010 4K HDR

                      8- Harry Potter and the Deathly Hallows: Part 2 Fantasy PG-13 David Yates 2011 4K HDR

                      9 Animated PG-13 Shane Acker 2009 Blu-ray quality

                      10 Cloverfield Lane Thriller PG-13 Dan Trachtenberg 2016 4K HDR

                      13 Hours: The Secret Soldiers of Benghazi Action R Michael Bay 2016 Blu-ray quality

                      21 Jump Street Action R Phil Lord 2012 4K HDR

                      22 Bullets Action NR-R Richard Berry 2010 Blu-ray quality

                      22 Jump Street Action R Phil Lord 2014 4K HDR

                      47 Ronin Action PG-13 Carl Rinsch 2013 Blu-ray quality

                      55 días en Pekín Drama NR-R Nicholas Ray 1963 Blu-ray disc

                      2001: A Space Odyssey Sci-Fi G Stanley Kubrick 1968 Blu-ray quality

                      2010: The Year We Make Contact Sci-Fi PG Peter Hyams 1984 Blu-ray quality

                      2012 Action PG-13 Roland Emmerich 2009 4K HDR

                      Absolutely Fabulous: The Movie Comedy R Mandie Fletcher 2016 Blu-ray quality

                      The Accountant Drama R Gavin O'Connor 2016 4K HDR

                      Across the Universe Romance PG-13 Julie Taymor 2007 4K HDR

                      Adrenaline Rush: The Science of Risk Documentary NR-G Marc Fafard 2002 4K Ultra HD

                      Adventure Coral Reef: Under the Sea of Egypt Nature PG 2013 Blu-ray disc

                      The Adventures of Baron Munchausen Fantasy PG Terry Gilliam 1988 Blu-ray quality

                      The Adventures of Robin Hood Adventure PG Michael Curtiz 1938 Blu-ray quality

                      Africa: The Serengeti Documentary NR-G George Casey 1994 4K Ultra HD

                      Against All Odds Romance R Taylor Hackford 1984 Blu-ray quality

                      Air Force One Action R Wolfgang Petersen 1997 4K Ultra HD

                      Al Di Meola, Stanley Clarke & Jean-Luc Ponty: Live at Montreux 1994 Music NR-R Gavin Taylor 1994 DVD

                      Aladdin Animated G John Musker 1992 Blu-ray quality

                      Alaska: Spirit of the Wild Nature NR-G George Casey 1996 4K Ultra HD

                      Alfred The Great NR-R DVD

                      Ali Baba and the Forty Thieves Adventure NR-R Arthur Lubin 1944 DVD quality

                      Alice Through the Looking Glass Fantasy PG James Bobin 2016 Blu-ray quality

                      Alien Resurrection Sci-Fi R Jean-Pierre Jeunet 1997 Blu-ray quality

                      Alien: Covenant Sci-Fi R Ridley Scott 2017 4K HDR

                      Aliens Sci-Fi R James Cameron 1986 Blu-ray quality

                      Allied Drama R Robert Zemeckis 2016 4K HDR

                      The Allman Brothers Band: Idlewild South Music NR-R 1970 Blu-ray disc

                      The Allman Brothers Band: The 1971 Fillmore East Recordings Music NR-R 1971 Blu-ray disc

                      Altered States Sci-Fi R Ken Russell 1980 Blu-ray quality

                      Alvarez Kelly Western NR-R Edward Dmytryk 1966 DVD

                      Alvin and the Chipmunks: The Road Chip Comedy PG Walt Becker 2015 4K HDR

                      The Amazing Captain Nemo Sci-Fi NR-R Alex March 1978 DVD

                      The Amazing Spider-Man Action PG-13 Marc Webb 2012 4K Ultra HD

                      The Amazing Spider-Man 2 Action PG-13 Marc Webb 2014 4K HDR

                      America: Homecoming Music NR-G 2001 DVD

                      American Assassin Action R Michael Cuesta 2017 Blu-ray quality

                      American Hustle Comedy R David O. Russell 2013 4K Ultra HD

                      American Made Drama R Doug Liman 2017 4K HDR

                      American Sniper Drama R Clint Eastwood 2014 4K HDR

                      American Ultra Action R Nima Nourizadeh 2015 Blu-ray quality

                      Anatomy of a Murder Drama NR-R Otto Preminger 1959 DVD quality

                      And Then There Were None Drama TV-MA Craig Viveiros 2015 Blu-ray quality

                      Angels & Demons Mystery PG-13 Ron Howard 2009 4K HDR

                      The Angry Birds Movie Animated PG Clay Kaytis 2016 4K HDR

                      Annabelle Horror R John R. Leonetti 2014 4K HDR

                      Annabelle: Creation Horror R David F. Sandberg 2017 4K HDR

                      Ant-Man Action PG-13 Peyton Reed 2015 Blu-ray quality

                      Anthony Phillips 1984 DVD-Audio Music NR-R DVD

                      Any Number Can Play Drama NR-R Mervyn LeRoy 1949 DVD quality

                      Apocalypse Now War R Francis Ford Coppola 1979 DVD quality

                      April and the Extraordinary World Animated PG Christian Desmares 2015 Blu-ray quality

                      Argo Drama R Ben Affleck 2012 4K HDR

                      Arrival Sci-Fi PG-13 Denis Villeneuve 2016 4K HDR

                      The Arrival Thriller PG-13 David Twohy 1996 Blu-ray quality

                      The Art of Flight Sports NR-R Curtis Morgan 2011 Blu-ray quality

                      Asia: Fantasia - Live in Tokyo Music NR-R 2007 Blu-ray disc

                      Asia: Symfonia — Live in Bulgaria 2013 with the Plovdiv Opera Orchestra NR-R 2013 DVD

                      Assassin's Creed Action PG-13 Justin Kurzel 2016 4K HDR

                      Assignment: Paris Film Noir NR-R Robert Parrish 1952 DVD

                      Astro Boy Animated PG David Bowers 2009 Blu-ray quality

                      Atlantis: The Lost Empire Animated PG Kirk Wise 2001 Blu-ray quality

                      Atomic Blonde Action R David Leitch 2017 4K HDR

                      Avatar Sci-Fi PG-13 James Cameron 2009 Blu-ray quality

                      Avengers: Age of Ultron Action PG-13 Joss Whedon 2015 Blu-ray quality

                      Baby Driver Crime R Edgar Wright 2017 4K HDR

                      Bachman & Turner: Live at the Roseland Ballroom, NYC Music NR-G Joe Thomas 2010 Blu-ray quality

                      Back to the Future Adventure PG Robert Zemeckis 1985 Blu-ray quality

                      The Bad and the Beautiful Drama NR-G Vincente Minnelli 1952 DVD quality

                      Bad Boys Action R Michael Bay 1995 4K Ultra HD

                      Bad Boys 2 Action R Michael Bay 2003 4K Ultra HD

                      Bad Teacher Comedy NR-R Jake Kasdan 2011 4K Ultra HD

                      The Barbarian and the Geisha Adventure G John Huston 1958 Blu-ray quality

                      Barnaby Jones (Season 1) Television NR-R Walter Grauman 1973 DVD

                      Barnaby Jones (Season 2) Television NR-R Walter Grauman 1973 DVD

                      Batman Action PG-13 Tim Burton 1989 Blu-ray quality

                      Batman & Robin Action PG-13 Joel Schumacher 1997 Blu-ray quality

                      Batman and Harley Quinn Animated PG-13 Sam Liu 2017 4K HDR

                      Batman Begins Action PG-13 Christopher Nolan 2005 4K HDR

                      Batman Forever Action PG-13 Joel Schumacher 1995 Blu-ray quality

                      Batman Returns Action PG-13 Tim Burton 1992 Blu-ray quality

                      Batman v Superman: Dawn of Justice Action R Zack Snyder 2016 4K HDR

                      Batman vs. Robin Animated PG-13 Jay Oliva 2015 Blu-ray quality

                      Batman vs. Two-Face Animated PG Rick Morales 2017 Blu-ray quality

                      Batman: Gotham by Gaslight Animated R Sam Liu 2018 4K HDR

                      Batman: The Dark Knight Returns (Part 1) Animated PG-13 Jay Oliva 2012 Blu-ray quality

                      Battle of the Bulge Action NR-R Ken Annakin 1965 Blu-ray quality

                      Battle Royale (Director's Cut) Action NR-R Kinji Fukasaku 2000 Blu-ray quality

                      Battleground Drama NR-R William A. Wellman 1949 Blu-ray quality

                      Battleship Sci-Fi PG-13 Peter Berg 2012 Multiple

                      Baywatch Action R Seth Gordon 2017 4K HDR

                      Beauty and the Beast Animated G Gary Trousdale 1991 Blu-ray quality

                      Beauty and the Beast Musical PG Bill Condon 2017 Blu-ray quality

                      Bedknobs and Broomsticks Musical G Robert Stevenson 1971 Blu-ray quality

                      The Beguiled Thriller R Sofia Coppola 2017 Blu-ray quality

                      Ben-Hur Epic G William Wyler 1959 Blu-ray quality

                      Beowulf (Director's Cut) Action NR-R Robert Zemeckis 2007 Blu-ray disc

                      Best of 4K: UHD Impressionen Special Interest NR-G 2015 Blu-ray disc

                      The BFG Adventure PG Steven Spielberg 2016 Blu-ray quality

                      Bhowani Junction Drama NR-R George Cukor 1956 DVD quality

                      Big Hero 6 Animated PG Don Hall 2014 Blu-ray quality

                      The Big Short Drama R Adam McKay 2015 Blu-ray quality

                      The Big Sleep Film Noir NR-R Howard Hawks 1946 DVD quality

                      Billy Cobham: Spectrum Music NR-R 1973 DVD

                      Billy Idol: In Super Overdrive - Live Music NR-R 2009 Blu-ray disc

                      Billy Joel: Live at Shea Stadium Music NR-R Jon Small 2008 Blu-ray quality

                      Billy Lynn's Long Halftime Walk Drama R Ang Lee 2016 4K HDR

                      The Birds Horror PG-13 Alfred Hitchcock 1963 Blu-ray quality

                      Bizet: Carmen Opera PG-13 Constantinos Carydis 2006 Blu-ray disc

                      Black Mass Drama R Scott Cooper 2015 4K HDR

                      Blackbeard the Pirate Adventure NR-R Raoul Walsh 1952 DVD quality

                      Blackfield V Blu Ray Audio Music NR-R Blu-ray disc

                      Blade Runner 2049 Sci-Fi R Denis Villeneuve 2017 4K HDR

                      Blade Runner: The Final Cut Sci-Fi R Ridley Scott 1982 4K HDR

                      Blood Alley Adventure NR-R John Wayne 1955 DVD quality

                      Blood Father Action R Jean-François Richet 2016 Blu-ray quality

                      Blue Man Group: Audio Music NR-G 1999 DVD

                      Blue Thunder Action R John Badham 1983 Blu-ray quality

                      Bob Marley and the Wailers: Live at the Rainbow Music NR-R Don Keefer 1977 DVD

                      Body Double Thriller R Brian De Palma 1984 4K Ultra HD

                      Bolt Animated PG Byron Howard 2008 Blu-ray quality

                      The Boss Baby Animated PG Tom McGrath 2017 Blu-ray quality

                      The Bourne Identity Action PG-13 Doug Liman 2002 4K HDR

                      The Bourne Legacy Action PG-13 Tony Gilroy 2012 4K HDR

                      The Bourne Supremacy Action PG-13 Paul Greengrass 2004 4K HDR

                      The Bourne Ultimatum Action PG-13 Paul Greengrass 2007 4K HDR

                      Boz Scaggs: Dig NR-R 2001 DVD

                      Boz Scaggs: Greatest Hits Live Music NR-G Lawrence Jordan 2004 DVD

                      Bram Stoker's Dracula Horror R Francis Ford Coppola 1992 4K HDR

                      Braveheart Drama R Mel Gibson 1995 Blu-ray quality

                      Brawl in Cell Block 99 Action NR-R S. Craig Zahler 2017 Blu-ray quality

                      The Bridge on the River Kwai War PG David Lean 1957 4K HDR

                      British Are Coming Music NR-R 2002 DVD

                      Brooklyn Drama PG-13 John Crowley 2015 4K HDR

                      The Brothers Grimsby Action R Louis Leterrier 2016 4K Ultra HD

                      Bryan Ferry: Live in Lyon Music NR-R Fabien Raymond 2011 Blu-ray quality

                      A Bug's Life Animated G John Lasseter 1998 Blu-ray quality

                      Bugs! Nature NR-G Mike Slee 2003 Blu-ray disc

                      Bullitt Action PG Peter Yates 1968 Blu-ray quality

                      Camel: Moondances Music NR-R 1976 DVD

                      Canadian Pacific Western NR-G Edwin L. Marin 1949 Blu-ray quality

                      Captain America: Civil War Action PG-13 Anthony Russo 2016 Blu-ray quality

                      Captain Blood Action NR-R Michael Curtiz 1935 DVD quality

                      Captain Horatio Hornblower Action NR-R Raoul Walsh 1951 DVD quality

                      Captain Lightfoot Adventure NR-R Blu-ray disc

                      Captain Nemo and the Underwater City Sci-Fi G James Hill 1969 DVD

                      Captain Phillips Drama PG-13 Paul Greengrass 2013 4K Ultra HD

                      Captain Underpants: The First Epic Movie Animated PG David Soren 2017 Blu-ray quality

                      Captains Courageous Adventure NR-G Victor Fleming 1937 DVD quality

                      Caravan In concert 3x4 stereo Music NR-R DVD

                      Caravan in Concert widescreen Dolby Digital Music NR-R DVD

                      Caravan Music Session 3x4 stereo Music NR-R DVD

                      Caravan: In the Land of Grey and Pink Music NR-R 1971 DVD

                      The Cariboo Trail Western NR-G Edwin L. Marin 1950 Blu-ray quality

                      Carly Simon: A Moonlight Serenade on the Queen Mary 2 Music NR-G Jim Gable 2005 Blu-ray quality

                      Castle in the Sky Anime PG Hayao Miyazaki 1986 Blu-ray disc

                      Celebrating the Music of Weather Report Music NR-R 2001 DVD

                      Central Intelligence Comedy NR-R Rawson Marshall Thurber 2016 4K HDR

                      Chappie Sci-Fi R Neill Blomkamp 2015 4K HDR

                      Charade Comedy NR-R Stanley Donen 1963 Blu-ray quality

                      Chicago: Chicago Music NR-R 1970 Blu-ray disc

                      Chicago: Chicago II Music NR-G 1970 DVD

                      Chicago: Chicago III Music NR-R 1971 Blu-ray disc

                      Chicago: Chicago IX Music NR-R 1977 Blu-ray disc

                      Chicago: Chicago V Music NR-R 1972 Blu-ray disc

                      Chicago: Chicago VI Music NR-R 1973 Blu-ray disc

                      Chicago: Chicago VII Music NR-R 1974 Blu-ray disc

                      Chicago: Chicago VIII Music NR-R 1975 Blu-ray disc

                      Chicago: Chicago X Music NR-R 1976 Blu-ray disc

                      Chicago: Transit Authority Music NR-R 1970 Blu-ray disc

                      Chicken Little Animated G Mark Dindal 2005 Blu-ray disc

                      Chips Comedy R Dax Shepard 2017 4K HDR

                      Chisum Western G Andrew V. McLaglen 1970 Blu-ray disc

                      The Chronicles of Riddick (Director's Cut) Sci-Fi NR-R David Twohy 2004 Blu-ray quality

                      Churchill Drama PG Jonathan Teplitzky 2017 Blu-ray quality

                      Cinerama: Russian Adventure NR-R Leonid Kristi 1966 DVD

                      Cleopatra Epic G Joseph L. Mankiewicz 1963 Blu-ray quality

                      A Clockwork Orange Drama R Stanley Kubrick 1971 Blu-ray quality

                      Cloverfield Disaster PG-13 Matt Reeves 2008 4K HDR

                      Coco Animated PG Lee Unkrich 2017 Blu-ray quality

                      Colossal Comedy R Nacho Vigalondo 2016 Blu-ray quality

                      Commando Action R Mark L. Lester 1985 Blu-ray quality

                      Conan the Barbarian Fantasy R Marcus Nispel 2011 Blu-ray quality

                      Concussion Drama PG-13 Peter Landesman 2015 4K HDR

                      The Conjuring Horror R James Wan 2013 4K HDR

                      The Conjuring 2 Horror R James Wan 2016 Blu-ray quality

                      Contact Sci-Fi PG Robert Zemeckis 1997 Blu-ray quality

                      The Conversation Crime PG Francis Ford Coppola 1974 Blu-ray quality

                      Cowboy Western NR-R Delmer Daves 1958 4K Ultra HD

                      The Crimson Pirate Action NR-R Robert Siodmak 1952 DVD quality

                      The Croods Animated G Chris Sanders 2013 Blu-ray quality

                      Crooked House Crime PG-13 Gilles Paquet-Brenner 2017 Blu-ray quality

                      Crossfire Film Noir NR-R Edward Dmytryk 1947 DVD quality

                      Crouching Tiger, Hidden Dragon Action PG-13 Ang Lee 2000 4K HDR

                      The Crusaders: Live at Montreux 2003 Music NR-R 2003 DVD

                      The CTI All-Star Band: Montreux Jazz Festival 2009 Music NR-R 2009 Blu-ray disc

                      A Cure for Wellness Thriller R Gore Verbinski 2017 Blu-ray quality

                      The Cure: Trilogy Music NR-R Nick Wickham 2002 Blu-ray disc

                      Curtis Mayfield: Live at Ronnie Scott's Music NR-R 1988 DVD

                      The Da Vinci Code Mystery PG-13 Ron Howard 2006 4K Ultra HD

                      Daddy's Home Comedy PG-13 Sean Anders 2015 4K HDR

                      Daddy's Home 2 Comedy PG-13 Sean Anders 2017 4K HDR

                      Damn the Defiant! Adventure NR-R Lewis Gilbert 1962 DVD quality

                      A Dangerous Profession Film Noir NR-R Ted Tetzlaff 1949 DVD quality

                      The Dark Knight Action PG-13 Christopher Nolan 2008 4K HDR

                      The Dark Knight Rises Action PG-13 Christopher Nolan 2012 4K HDR

                      The Dark Tower Sci-Fi PG-13 Nikolaj Arcel 2017 4K HDR

                      Darkest Hour Drama PG-13 Joe Wright 2017 4K HDR

                      Daryl Hall & John Oates: Live in Dublin Music NR-R Joss Crowley 2014 Blu-ray quality

                      David Bowie: A Reality Tour Music NR-R Marcus Viner 2004 DVD

                      Dawn of the Planet of the Apes Sci-Fi PG-13 Matt Reeves 2014 4K HDR

                      The Day of the Jackal Suspense PG Fred Zinnemann 1973 DVD quality

                      The Day the Earth Stood Still Sci-Fi G Robert Wise 1951 Blu-ray quality

                      Deadmau5: Meowingtons Hax 2K11 Music NR-G 2011 Blu-ray quality

                      Deadpool Action R Tim Miller 2016 4K HDR

                      Death Race Action NR-R Paul W.S. Anderson 2008 Blu-ray quality

                      Deep Purple: Live at Montreux 1996 Music NR-R 1996 DVD

                      Deep Purple: Live at Montreux 2006 Music NR-R 2006 DVD

                      Deep Purple: Machine Head Documentary NR-R 1972 DVD

                      Deepwater Horizon Action PG-13 Peter Berg 2016 Blu-ray quality

                      Depeche Mode: Alive In Berlin Music NR-R Anton Corbijn 2014 Blu-ray quality

                      Depeche Mode: Violator Music NR-R 1990 DVD

                      Despicable Me Animated PG Chris Renaud 2010 4K HDR

                      Despicable Me 2 Animated PG Chris Renaud 2013 4K HDR

                      Despicable Me 3 Animated PG Pierre Coffin 2017 4K HDR

                      Detroit Drama R Kathryn Bigelow 2017 Blu-ray quality

                      Dinosaur Animated PG Eric Leighton 2000 Blu-ray quality

                      Dirty Rotten Scoundrels Comedy PG Frank Oz 1988 Blu-ray disc

                      District 9 Sci-Fi R Neill Blomkamp 2009 4K HDR

                      Diva Thriller R Jean-Jacques Beineix 1981 DVD quality

                      The Divergent Series: Allegiant Sci-Fi PG-13 Robert Schwentke 2016 Blu-ray quality

                      The Divergent Series: Insurgent Sci-Fi PG-13 Robert Schwentke 2015 Blu-ray quality

                      Doctor Strange Action PG-13 Scott Derrickson 2016 Blu-ray quality

                      Dolby Atmos Demonstration Special Interest NR-R 2015 Blu-ray disc

                      Donald Fagen: Kamakiriad Music NR-G 2003 DVD

                      Donald Fagen: Morph the Cat Music NR-R 2006 DVD

                      Donald Fagen: The Nightfly (DVD Audio) Music NR-R DVD

                      Donald Fagen: The Nightfly Trilogy Music NR-R 2007 DVD

                      The Doobie Brothers: Live at the Greek Theatre Music NR-R 1982 DVD

                      Dorm2 NR-R DVD

                      The Double Man Spy NR-R Franklin J. Schaffner 1967 DVD quality

                      Downsizing Comedy R Alexander Payne 2017 4K HDR

                      Dr. Seuss' How the Grinch Stole Christmas Holiday PG Ron Howard 2000 4K HDR

                      Dr. Strangelove or: How I Learned to Stop Worrying and Love the Bomb Satire PG Stanley Kubrick 1964 Blu-ray quality

                      Dracula Has Risen from the Grave Horror G Freddie Francis 1968 Blu-ray quality

                      Dracula Untold Action PG-13 Gary Shore 2014 4K HDR

                      Dracula: Dead and Loving It Comedy PG-13 Mel Brooks 1995 DVD quality

                      Dracula: Prince of Darkness Horror NR-R Terence Fisher 1966 Blu-ray disc

                      Dragonheart: Battle for the Heartfire Fantasy PG-13 Patrik Syversen 2017 Blu-ray quality

                      Dredd Action R Pete Travis 2012 Blu-ray quality

                      The Drowning Pool Thriller PG Stuart Rosenberg 1975 Multiple

                      The Dukes of September: Live at Lincoln Center Music NR-G David Horn 2012 Blu-ray disc

                      Dune Sci-Fi PG-13 David Lynch 1984 Blu-ray quality

                      Dunkirk War PG-13 Christopher Nolan 2017 4K HDR

                      Duran Duran: A Diamond in the Mind — Live 2011 Music NR-R Gavin Elder 2011 Blu-ray quality

                      E.T. the Extra-Terrestrial Sci-Fi PG Steven Spielberg 1982 4K HDR

                      Eagles: Hotel California Music NR-R 1976 DVD

                      Earth, Wind & Fire: Live Music NR-G 1994 DVD

                      Earth: One Amazing Day Documentary G Richard Dale 2017 4K HDR

                      Eddie the Eagle Comedy PG-13 Dexter Fletcher 2016 4K HDR

                      Elle Thriller R Paul Verhoeven 2016 Blu-ray quality

                      Elton John: Goodbye Yellow Brick Road Music NR-G Bob Smeaton 1973 Blu-ray disc

                      Elysium Sci-Fi R Neill Blomkamp 2013 4K HDR

                      Emerson, Lake & Palmer Music NR-R 1970 DVD

                      Emerson, Lake & Palmer: Live at Montreux 1997 Music NR-R 1997 DVD

                      Emerson, Lake & Palmer: Pictures at an Exhibition Music NR-R Nicholas Ferguson 1971 DVD

                      Emerson, Lake & Palmer: Tarkus Music NR-R 1971 DVD

                      Emerson, Lake & Palmer: Trilogy NR-R 2015 DVD

                      Emerson, Lake & Palmer DVD-A Brain Salad Surgery Music NR-R 1973 DVD

                      The Emoji Movie Animated PG Tony Leondis 2017 4K HDR

                      End of Watch Crime R David Ayer 2012 Blu-ray quality

                      Ender's Game Sci-Fi PG-13 Gavin Hood 2013 Blu-ray quality

                      Enemy of the State Thriller R Tony Scott 1998 Blu-ray quality

                      Entourage: The Movie Comedy R Doug Ellin 2015 4K HDR

                      Europa Report Sci-Fi PG-13 Sebastián Cordero 2013 Blu-ray quality

                      Everest Action PG-13 Baltasar Kormákur 2015 Multiple

                      Evil Dead Horror R Fede Alvarez 2013 4K Ultra HD

                      Evolution Satire PG-13 Ivan Reitman 2001 DVD

                      Exodus: Gods and Kings Epic PG-13 Ridley Scott 2014 4K HDR

                      The Expanse (Season 1) Television TV-14 Terry McDonough 2015 Blu-ray quality

                      The Expanse (Season 2) Television TV-14 Breck Eisner 2017 Blu-ray quality

                      The Expendables 3 Action PG-13 Patrick Hughes 2014 Blu-ray quality

                      Experience Montreux Music NR-R David Barnard 2010 Blu-ray disc

                      Eyes Wide Shut Drama R Stanley Kubrick 1999 Blu-ray quality

                      Fall Guy Film Noir NR-R Reginald Le Borg 1947 DVD quality

                      Fantastic Beasts and Where to Find Them Action PG-13 David Yates 2016 4K HDR

                      Fantastic Four Action PG-13 Josh Trank 2015 4K HDR

                      Fantastic Mr. Fox Animated PG Wes Anderson 2009 Blu-ray quality

                      Fast & Furious 6 Action PG-13 Justin Lin 2013 4K HDR

                      The Fate of the Furious Action PG-13 F. Gary Gray 2017 4K HDR

                      FBI Girl Film Noir NR-R William Berke 1951 DVD

                      Fear and Loathing in Las Vegas Satire R Terry Gilliam 1998 Blu-ray quality

                      Ferdinand Animated PG Carlos Saldanha 2017 4K HDR

                      A Field in England Drama NR-R Ben Wheatley 2013 Blu-ray quality

                      The Fifth Element Sci-Fi PG-13 Luc Besson 1997 4K HDR

                      Fighter Pilot: Operation Red Flag Documentary NR-G Stephen Low 2005 4K Ultra HD

                      Finding Dory Animated PG Andrew Stanton 2016 Blu-ray quality

                      The Finest Hours Action PG-13 Craig Gillespie 2016 Blu-ray quality

                      The Fixx: 1011 Woodland Music NR-R 1999 DVD

                      The Flame and the Arrow Adventure NR-G Jacques Tourneur 1950 DVD quality

                      Flash Gordon Sci-Fi PG Mike Hodges 1980 Blu-ray quality

                      Flatliners Horror PG-13 Niels Arden Oplev 2017 4K HDR

                      Flight of the Navigator Family PG Randal Kleiser 1986 Blu-ray quality

                      The Flintstones (Season 1) Television TV-G William Hanna 1960 DVD

                      Focus Crime R Glenn Ficarra 2015 4K HDR

                      For Whom the Bell Tolls Drama NR-G Sam Wood 1943 DVD quality

                      Forbidden Films Documentary NR-R Felix Moeller 2014 Blu-ray quality

                      Forbidden Planet Sci-Fi G Fred McLeod Wilcox 1956 Blu-ray quality

                      The Formula Mystery R John G. Avildsen 1980 DVD quality

                      The Founder Drama PG-13 John Lee Hancock 2016 Blu-ray quality

                      Foyle's War (Set Television TV-PG Stuart Orme 2015 Blu-ray quality

                      Free State of Jones Drama R Gary Ross 2016 Blu-ray quality

                      From Dusk Till Dawn Horror R Robert Rodriguez 1996 Blu-ray quality

                      From Hell It Came Sci-Fi NR-R Dan Milner 1957 DVD

                      From Paris with Love Action R Pierre Morel 2010 Blu-ray quality

                      Funny Girl Musical G William Wyler 1968 4K Ultra HD

                      Furious 7 Action PG-13 James Wan 2015 4K HDR

                      Fury War R David Ayer 2014 4K HDR

                      G-Force Animated PG Hoyt H. Yeatman Jr. 2009 Blu-ray disc

                      Game of Thrones (Season 4) Television TV-MA D.B. Weiss 2014 Blu-ray disc

                      Gaslight Suspense NR-R George Cukor 1944 DVD quality

                      Gato Barbieri: Live from the Latin Quarter Music NR-R 1999 DVD

                      Gattaca Sci-Fi PG-13 Andrew Niccol 1997 Blu-ray quality

                      The Gauntlet Action R Clint Eastwood 1977 Blu-ray quality

                      Generation War Drama NR-R Philipp Kadelbach 2013 Blu-ray quality

                      Genesis: Extra Tracks 1970-1975 Music NR-R 1975 DVD

                      Genesis: Foxtrot Music NR-R 1972 DVD

                      Genesis: Nursery Cryme Music NR-R 1971 DVD

                      Genesis: Selling England by the Pound Music NR-R 1973 DVD

                      Genesis: Sum of the Parts Music NR-R John Edginton 1967 Blu-ray quality

                      Genesis: The Lamb Lies Down on Broadway Music NR-R 1974 DVD

                      Genesis: Three Sides Live Music NR-R Stuart Orme 1981 Blu-ray quality

                      Genesis: Trespass Music NR-R 1970 DVD

                      Gentle Giant: Octopus Music NR-R 1976 Blu-ray disc

                      Gentle Giant: The Power and the Glory Music NR-R 1974 Blu-ray disc

                      George Thorogood & the Destroyers: Live at Montreux 2013 Music NR-R Romain Guélat 2013 Blu-ray quality

                      Geostorm Action PG-13 Dean Devlin 2017 4K HDR

                      Get Hard Comedy R Etan Cohen 2015 4K HDR

                      Get Out Thriller R Jordan Peele 2017 4K HDR

                      The Getaway Crime PG Sam Peckinpah 1972 Blu-ray quality

                      The Ghost and Mr. Chicken Comedy NR-G Alan Rafkin 1966 Blu-ray quality

                      Ghost in the Shell Sci-Fi PG-13 Rupert Sanders 2017 4K HDR

                      Ghost in the Shell 2.0 Anime NR-R Mamoru Oshii 1996 Blu-ray quality

                      Ghostbusters Comedy PG Ivan Reitman 1984 4K HDR

                      Ghostbusters Comedy PG-13 Paul Feig 2016 4K HDR

                      Ghostbusters 2 Comedy PG Ivan Reitman 1989 4K HDR

                      Gino Vannelli in LA Music NR-R Blu-ray disc

                      The Girl on the Train Thriller R Tate Taylor 2016 Blu-ray quality

                      Girls Trip Comedy R Malcolm D. Lee 2017 Blu-ray quality

                      Gladiator Action NR-R Ridley Scott 2000 Blu-ray quality

                      Glory War R Edward Zwick 1989 4K Ultra HD

                      Gods of Egypt Epic PG-13 Alex Proyas 2016 Blu-ray quality

                      Godzilla Sci-Fi PG-13 Roland Emmerich 1998 4K Ultra HD

                      Godzilla Sci-Fi PG-13 Gareth Edwards 2014 Blu-ray quality

                      The Golden Compass Fantasy PG-13 Chris Weitz 2007 Blu-ray quality

                      The Golden Voyage of Sinbad Fantasy G Gordon Hessler 1973 Multiple

                      Goldfrapp: Wonderful Electric — Live in London Music NR-R Mark Rainsforth 2004 DVD

                      Gong: Rejoice! I'm Dead! NR-R 2016 DVD

                      GoodFellas Crime R Martin Scorsese 1990 4K HDR

                      Goosebumps Comedy PG Rob Letterman 2015 4K HDR

                      Grace Jones: Warm Leatherette Music NR-G 1980 Blu-ray disc

                      The Grand Budapest Hotel Comedy R Wes Anderson 2014 Blu-ray quality

                      Gravity Drama PG-13 Alfonso Cuarón 2013 Blu-ray quality

                      The Great Gatsby Drama PG-13 Baz Luhrmann 2013 4K HDR

                      The Great Wall Action PG-13 Zhang Yimou 2016 Multiple

                      The Greatest Places Documentary NR-G Mal Wolfe 1998 4K HDR

                      The Green Hornet Action PG-13 Michel Gondry 2011 Blu-ray quality

                      Green Lantern: Emerald Knights Animated PG Christopher Berkeley 2011 Blu-ray quality

                      Gregory Porter: Live in Berlin Music NR-R Jeremy Azis 2016 Blu-ray quality

                      Gremlins Horror PG Joe Dante 1984 Blu-ray quality

                      Groundhog Day Comedy PG Harold Ramis 1993 4K HDR

                      Grover Washington, Jr: Winelight Music NR-G 1980 DVD

                      Guardians of the Galaxy Action PG-13 James Gunn 2014 Blu-ray quality

                      Guardians of the Galaxy Vol. 2 Action PG-13 James Gunn 2017 Blu-ray quality

                      The Gunman Thriller R Pierre Morel 2015 Blu-ray quality

                      The Guns of Navarone War NR-R J. Lee Thompson 1961 4K Ultra HD

                      Hacksaw Ridge Drama R Mel Gibson 2016 Blu-ray quality

                      The Hangover Comedy R Todd Phillips 2009 4K HDR

                      The Hangover Part II Comedy R Todd Phillips 2011 4K HDR

                      The Hangover Part III Comedy R Todd Phillips 2013 4K HDR

                      Hans Zimmer: Live in Prague - ATMOS MUSIC Music NR-G Tim Van Someren 2016 Blu-ray disc

                      Happy Death Day Horror PG-13 Christopher Landon 2017 4K HDR

                      Hard Times Action PG Walter Hill 1975 4K Ultra HD

                      Harper Crime NR-R Jack Smight 1966 Blu-ray quality

                      Harry Brown Crime R Daniel Barber 2009 Blu-ray quality

                      The Hateful Eight Western R Quentin Tarantino 2015 Blu-ray quality

                      Hauru no ugoku shiro Anime PG Hayao Miyazaki 2004 Blu-ray disc

                      Heart: Live at the Royal Albert Hall with the Royal Philharmonic Orchestra Music NR-G James Russell 2016 Blu-ray quality

                      Heat Thriller R Michael Mann 1995 Blu-ray quality

                      Heaven and Earth Samurai Flick Adventure PG DVD

                      Heaven Knows, Mr. Allison Drama NR-R John Huston 1957 Blu-ray disc

                      Hellboy 2: The Golden Army Action PG-13 Guillermo del Toro 2008 Blu-ray quality

                      Hellboy (Director's Cut) Action NR-R Guillermo del Toro 2004 Blu-ray quality

                      Hello, Dolly! Musical G Gene Kelly 1969 Blu-ray quality

                      Hidden Figures Drama PG Theodore Melfi 2016 4K HDR

                      High Anxiety Comedy PG Mel Brooks 1977 Blu-ray quality

                      High Sierra Crime NR-R Raoul Walsh 1941 DVD quality

                      High Wall Crime NR-R Curtis Bernhardt 1947 DVD

                      A Hijacking Drama R Tobias Lindholm 2012 Blu-ray quality

                      Hitch Comedy PG-13 Andy Tennant 2005 4K Ultra HD

                      The Hitchhiker's Guide to the Galaxy Adventure PG Garth Jennings 2005 Blu-ray quality

                      Hitman: Agent 47 Action R Aleksander Bach 2015 4K HDR

                      The Hitman's Bodyguard Action R Patrick Hughes 2017 Blu-ray quality

                      The Hobbit: An Unexpected Journey Fantasy PG-13 Peter Jackson 2013 Blu-ray quality

                      The Hobbit: The Battle of the Five Armies Fantasy R Peter Jackson 2014 Blu-ray quality

                      Hook Fantasy PG Steven Spielberg 1991 Blu-ray quality

                      Hotel Transylvania 2 Animated PG Genndy Tartakovsky 2015 4K HDR

                      The House Comedy R Andrew Jay Cohen 2017 4K HDR

                      House of Wax Horror PG André De Toth 1953 Blu-ray disc

                      How to Be Single Comedy R Christian Ditter 2016 4K HDR

                      How To Steal a Million NR-R Blu-ray disc

                      How to Train Your Dragon Animated PG Chris Sanders 2010 Blu-ray quality

                      Howard the Duck Sci-Fi PG Willard Huyck 1986 Blu-ray quality

                      Hugo Drama PG Martin Scorsese 2011 Blu-ray quality

                      Hulk Action PG-13 Ang Lee 2003 Blu-ray quality

                      The Hunger Games Drama PG-13 Gary Ross 2012 Blu-ray quality

                      The Hunger Games: Catching Fire Drama PG-13 Francis Lawrence 2013 Blu-ray quality

                      The Hunger Games: Mockingjay (Part 1) Drama PG-13 Francis Lawrence 2014 Blu-ray quality

                      The Hunger Games: Mockingjay (Part 2) Drama PG-13 Francis Lawrence 2015 Blu-ray quality

                      Hunt for the Wilderpeople Comedy PG-13 Taika Waititi 2016 Blu-ray quality

                      The Hunter's Prayer Action R Jonathan Mostow 2017 Blu-ray quality

                      The Huntsman: Winter's War Fantasy NR-R Cedric Nicolas-Troyan 2016 Blu-ray quality

                      I Am Legend Action PG-13 Francis Lawrence 2007 4K HDR

                      I, Tonya Drama R Craig Gillespie 2017 Blu-ray quality

                      Ice Age 3: Dawn of the Dinosaurs Animated PG Carlos Saldanha 2009 Blu-ray disc

                      Ice Age: Collision Course Animated PG Mike Thurmeier 2016 4K HDR

                      Ice Station Zebra Action G John Sturges 1968 Blu-ray quality

                      Identity Thief Comedy NR-R Seth Gordon 2013 Blu-ray quality

                      Imagine Dragons: Smoke + Mirrors Live Music NR-R Dick Carruthers 2015 Blu-ray quality

                      IMAX: To the Arctic Documentary G Greg MacGillivray 2012 Blu-ray quality

                      IMAX: Under the Sea Documentary G Howard Hall 2009 Blu-ray disc

                      The Imitation Game Drama PG-13 Morten Tyldum 2014 Blu-ray quality

                      In a Valley of Violence Western R Ti West 2016 Blu-ray quality

                      In the Heart of the Sea Adventure PG-13 Ron Howard 2015 4K HDR

                      Inception Action PG-13 Christopher Nolan 2010 4K HDR

                      Incognito: Live in London — The 30th Anniversary Concert Music NR-G 2009 Blu-ray disc

                      The Incredible Hulk Action PG-13 Louis Leterrier 2008 Blu-ray quality

                      The Incredibles Animated PG Brad Bird 2004 Blu-ray quality

                      Independence Day Sci-Fi PG-13 Roland Emmerich 1996 4K HDR

                      Independence Day: Resurgence Sci-Fi PG-13 Roland Emmerich 2016 4K HDR

                      Indiana Jones and the Kingdom of the Crystal Skull Adventure PG-13 Steven Spielberg 2008 Blu-ray quality

                      Indiana Jones and the Last Crusade Adventure PG-13 Steven Spielberg 1989 Blu-ray quality

                      Indiana Jones and the Raiders of the Lost Ark Adventure PG Steven Spielberg 1981 Blu-ray quality

                      Indiana Jones and the Temple of Doom Adventure PG Steven Spielberg 1984 Blu-ray quality

                      Inferno Mystery PG-13 Ron Howard 2016 4K HDR

                      Inglourious Basterds Drama R Quentin Tarantino 2009 Blu-ray quality

                      Inherent Vice Drama R Paul Thomas Anderson 2015 Blu-ray quality

                      The Inn of the Sixth Happiness Drama NR-R Mark Robson 1958 Blu-ray quality

                      The Intern Comedy PG-13 Nancy Meyers 2015 4K HDR

                      Interstellar Sci-Fi PG-13 Christopher Nolan 2014 4K HDR

                      Into the Storm Disaster PG-13 Steven Quale 2014 4K HDR

                      Investigation of a Citizen Above Suspicion Drama R Elio Petri 1970 4K Ultra HD

                      INXS: Kick 30 -ATMOS MUSIC Music NR-R 1987 Blu-ray disc

                      Iron Man Action PG-13 Jon Favreau 2008 Blu-ray quality

                      Iron Man 3 Action PG-13 Shane Black 2013 Blu-ray quality

                      IT Horror R Andy Muschietti 2017 4K HDR

                      It's a Wonderful Life Holiday NR-G Frank Capra 1946 Blu-ray quality

                      Ivanhoe Adventure NR-R Richard Thorpe 1952 DVD quality

                      Jack Reacher Action PG-13 Christopher McQuarrie 2012 Blu-ray quality

                      Jack Reacher: Never Go Back Action PG-13 Edward Zwick 2016 4K HDR

                      Jackie Brown Crime R Quentin Tarantino 1997 Blu-ray quality

                      James and the Giant Peach Animated PG Henry Selick 1996 Blu-ray quality

                      Jason and the Argonauts Fantasy G Don Chaffey 1963 Blu-ray quality

                      Jason Bourne Action PG-13 Paul Greengrass 2016 4K HDR

                      Jeff Beck: Live at the Hollywood Bowl Music NR-R Jim Yukich 2016 Blu-ray disc

                      Jeff Beck: Live in Tokyo Music NR-R Chikara Tanaka 2014 Blu-ray quality

                      Jeff Beck: Performing This Week... — Live at Ronnie Scott's Music NR-G Alan Branch 2008 Blu-ray disc

                      Jeff Lynne's ELO: Live in Hyde Park Music NR-R Janet Fraser-Cook 2014 Blu-ray quality

                      Jeff Lynne's ELO: Wembley or Bust Music NR-R Paul Dugdale 2017 Blu-ray disc

                      Jerry Maguire Comedy R Cameron Crowe 1996 4K Ultra HD

                      Jethro Tull: Aqualung Music NR-R 1971 Blu-ray disc

                      Jethro Tull's Ian Anderson: Thick as a Brick — Live in Iceland Music NR-R Bjorn Emilsson 2012 Blu-ray quality

                      Jimi Hendrix: Blue Wild Angel — Live at the Isle of Wight Music NR-G Murray Lerner 1970 Blu-ray quality

                      Joe Satriani: Satchurated — Live in Montreal Music NR-R Pierre Lamoureux 2012 Blu-ray quality

                      John Entwistle Band: Live Music NR-G Robert Swope 2003 DVD

                      John Wick Action R Chad Stahelski 2014 Blu-ray quality

                      John Wick: Chapter 2 Action R Chad Stahelski 2017 Blu-ray quality

                      Johnny Tremain Adventure NR-G Robert Stevenson 1957 DVD

                      Joni Mitchell: Shadows and Light Music NR-G Joni Mitchell 1980 DVD

                      Journey to Space Documentary NR-G Mark Krenzien 2015 4K HDR

                      Journey to the West: Conquering the Demons Action PG-13 Stephen Chow 2013 Blu-ray quality

                      Journey: Live in Manila Music NR-R Eli Tishberg 2009 Blu-ray quality

                      Joy Drama PG-13 David O. Russell 2015 4K HDR

                      Julie & Julia Comedy PG-13 Nora Ephron 2009 4K Ultra HD

                      Jumanji Adventure PG Joe Johnston 1995 4K HDR

                      Jumanji: Welcome to the Jungle Action PG-13 Jake Kasdan 2017 4K HDR

                      The Jungle Book Adventure PG Jon Favreau 2016 Blu-ray quality

                      Jupiter Ascending Sci-Fi PG-13 Andy Wachowski 2015 4K HDR

                      Jurassic Park Adventure PG-13 Steven Spielberg 1993 Blu-ray quality

                      Jurassic Park 2: The Lost World Adventure PG-13 Steven Spielberg 1997 Blu-ray quality

                      Jurassic Park 3 Adventure PG-13 Joe Johnston 2001 Blu-ray quality

                      Jurassic World Adventure PG-13 Colin Trevorrow 2015 Blu-ray quality

                      Justice League Action PG-13 Zack Snyder 2017 4K HDR

                      Kagemusha Drama PG Akira Kurosawa 1980 Blu-ray disc

                      The Karate Kid Drama PG Harald Zwart 2010 4K Ultra HD

                      Keanu Comedy R Peter Atencio 2016 4K HDR

                      Keeping Up with the Joneses Comedy PG-13 Greg Mottola 2016 4K HDR

                      Kick-Ass 2 Action R Jeff Wadlow 2013 Blu-ray quality

                      Kiki's Delivery Service Anime G Hayao Miyazaki 1989 Blu-ray disc

                      Kill Bill, Volume 1 Action R Quentin Tarantino 2003 Blu-ray quality

                      Kill Bill, Volume 2 Action R Quentin Tarantino 2004 Blu-ray quality

                      King Arthur: Legend of the Sword Action PG-13 Guy Ritchie 2017 4K HDR

                      King Crimson Beat Blu Ray Audio Music NR-R Blu-ray disc

                      King Crimson Discipline 40th anniversary BluRay Audio Music NR-R Blu-ray disc

                      King Crimson TOAPP Blu Ray Audio Music NR-R Blu-ray disc

                      King Kong Adventure PG-13 Peter Jackson 2005 4K HDR

                      Kingsman: The Golden Circle Action R Matthew Vaughn 2017 4K HDR

                      Kingsman: The Secret Service Action R Matthew Vaughn 2014 4K HDR

                      Kong: Skull Island Adventure PG-13 Jordan Vogt-Roberts 2017 4K HDR

                      Kraftwerk: 3-D the Catalogue - ATMOS MUSIC Music NR-R 2017 Blu-ray disc

                      Kygo: Live at the Hollywood Bowl Music NR-R Devin Chanda 2017 4K Ultra HD

                      L.A. Confidential Film Noir R Curtis Hanson 1997 Blu-ray quality

                      L'uomo che non sapeva amare Drama PG Edward Dmytryk 1964 DVD

                      La La Land Musical PG-13 Damien Chazelle 2016 Blu-ray quality

                      Lady in the Lake Drama NR-R Robert Montgomery 1946 DVD quality

                      The Ladykillers Crime NR-R Alexander MacKendrick 1955 Blu-ray quality

                      Land of the Lost Comedy PG-13 Brad Silberling 2009 Blu-ray quality

                      Lara Croft Tomb Raider: The Cradle of Life Adventure PG-13 Jan de Bont 2003 4K HDR

                      Lara Croft: Tomb Raider Adventure PG-13 Simon West 2001 4K HDR

                      The Last Detail Drama R Hal Ashby 1973 4K Ultra HD

                      The Last Reef: Cities Beneath the Sea Documentary NR-G Luke Cresswell 2012 4K HDR

                      The Last Starfighter Sci-Fi PG Nick Castle 1984 Blu-ray quality

                      The Last Witch Hunter Action PG-13 Breck Eisner 2015 Blu-ray quality

                      The Law and Jake Wade Western NR-G John Sturges 1958 DVD quality

                      Lawrence of Arabia Adventure PG David Lean 1962 4K Ultra HD

                      Led Zeppelin: Celebration Day Music NR-R Dick Carruthers 2007 Blu-ray disc

                      Led Zeppelin: Live at the Royal Albert Hall — 1970 Music NR-R Jimmy Page 1970 DVD

                      Led Zeppelin: The Song Remains the Same Documentary PG Peter Clifton 1973 Blu-ray quality

                      Lee Ritenour: Overtime Music NR-G Charley Randazzo 2004 Blu-ray disc

                      The Legend of Tarzan Action PG-13 David Yates 2016 4K HDR

                      Legends of Flight Documentary NR-G Stephen Low 2010 4K Ultra HD

                      Legends of Jazz with Ramsey Lewis: Showcase Music TV-G 2006 Blu-ray disc

                      The Lego Batman Movie Animated PG Chris McKay 2017 4K HDR

                      The Lego Movie Animated PG Phil Lord 2014 4K HDR

                      The Lego Ninjago Movie Animated PG Charlie Bean 2017 4K HDR

                      Léon, the Professional Action R Luc Besson 1994 4K HDR

                      Life Sci-Fi R Daniel Espinosa 2017 4K HDR

                      Life of Pi Drama PG Ang Lee 2012 4K HDR

                      Limitless Thriller NR-R Neil Burger 2011 Blu-ray disc

                      The Liquidator Spy NR-R Jack Cardiff 1965 DVD quality

                      Live at Knebworth Music NR-R Larry Jordan 1990 Blu-ray disc

                      Live by Night Crime R Ben Affleck 2016 4K HDR

                      Logan Action R James Mangold 2017 4K HDR

                      Logan Lucky Crime PG-13 Steven Soderbergh 2017 4K HDR

                      Logan's Run Sci-Fi PG Michael Anderson 1976 Blu-ray quality

                      London Has Fallen Action R Babak Najafi 2016 Blu-ray quality

                      Looper Action R Rian Johnson 2012 4K Ultra HD

                      Loophole Crime NR-R Harold D. Schuster 1954 DVD quality

                      The Lord of the Rings I: The Fellowship of the Ring Fantasy PG-13 Peter Jackson 2001 Blu-ray quality

                      The Lord of the Rings II: The Two Towers Fantasy PG-13 Peter Jackson 2002 Blu-ray quality

                      The Lord of the Rings III: The Return of the King Fantasy PG-13 Peter Jackson 2003 Blu-ray quality

                      The Lost Skeleton of Cadavra Comedy NR-G Larry Blamire 2004 DVD quality

                      Loving Vincent Adventure PG-13 Dorota Kobiela 2017 Blu-ray quality

                      Lt. Robin Crusoe, U.S.N. Adventure G Byron Paul 1966 DVD

                      Lucy Action R Luc Besson 2014 4K HDR

                      Lynyrd Skynyrd: Pronounced 'Leh-'nérd 'Skin-'nérd & Second Helping — Live from Jacksonville Music NR-R Bruce Green 2015 Blu-ray quality

                      Lynyrd Skynyrd: Then and Now Music NR-R 1997 DVD

                      MacKenna's Gold Western PG J. Lee Thompson 1969 DVD quality

                      Mad Max: Fury Road Action R George Miller 2015 Multiple

                      Madagascar 3: Europe's Most Wanted Animated PG Eric Darnell 2012 Blu-ray quality

                      Magic Mike XXL Comedy R Gregory Jacobs 2015 4K HDR

                      Magnum Force Action R Ted Post 1973 Blu-ray quality

                      The Man from U.N.C.L.E. Action PG-13 Guy Ritchie 2015 4K HDR

                      Man in the Dark 3D Film Noir NR-R Lew Landers 1953 Blu-ray disc

                      Man of Steel Action PG-13 Zack Snyder 2013 4K HDR

                      The Man Who Knew Too Much Thriller PG Alfred Hitchcock 1956 Blu-ray quality

                      Mars Attacks! Comedy PG-13 Tim Burton 1996 Blu-ray quality

                      The Martian Adventure PG-13 Ridley Scott 2015 4K HDR

                      Marvel's The Avengers Action PG-13 Joss Whedon 2012 Blu-ray quality

                      Mary Poppins Musical G Robert Stevenson 1964 Blu-ray quality

                      The Mask of Zorro Action PG-13 Martin Campbell 1998 4K Ultra HD

                      The Master of Ballantrae Adventure NR-R William Keighley 1953 DVD quality

                      The Maze Runner Sci-Fi PG-13 Wes Ball 2014 4K HDR

                      Maze Runner: The Scorch Trials Sci-Fi PG-13 Wes Ball 2015 4K HDR

                      Mechanic: Resurrection Action R Dennis Gansel 2016 Blu-ray quality

                      Megan Leavey Drama PG-13 Gabriela Cowperthwaite 2017 Blu-ray quality

                      Memorias de un hombre invisible Comedy PG-13 John Carpenter 1992 Blu-ray disc

                      Memphis Belle War PG-13 Michael Caton-Jones 1990 Blu-ray quality

                      Men in Black Action PG-13 Barry Sonnenfeld 1997 4K HDR

                      Men in Black 3 Comedy PG-13 Barry Sonnenfeld 2012 4K HDR

                      Men in Black II Comedy PG-13 Barry Sonnenfeld 2002 4K Ultra HD

                      Midnight Run Comedy R Martin Brest 1988 Blu-ray quality

                      Mike and Dave Need Wedding Dates Comedy R Jake Szymanski 2016 4K HDR

                      Minions Animated PG Pierre Coffin 2015 Multiple

                      Miss Peregrine's Home for Peculiar Children Fantasy PG-13 Tim Burton 2016 4K HDR

                      Mission to Mars Sci-Fi PG Brian De Palma 2000 Blu-ray quality

                      Mission: Impossible Action PG-13 Brian De Palma 1996 Blu-ray quality

                      Mission: Impossible 2 Action PG-13 John Woo 2000 Blu-ray quality

                      Mission: Impossible 3 Action PG-13 J.J. Abrams 2006 Blu-ray quality

                      Mission: Impossible — Ghost Protocol Action PG-13 Brad Bird 2011 Blu-ray quality

                      Mission: Impossible — Rogue Nation Action PG-13 Christopher McQuarrie 2015 Blu-ray quality

                      Mixed Live: Donald Glaude — 2nd Session The Gallery London NR-R 2003 DVD

                      Miyako Island NR-R 2016 Blu-ray disc

                      Moana Animated PG Ron Clements 2016 Blu-ray quality

                      Money Monster Drama R Jodie Foster 2016 4K HDR

                      Moneyball Drama PG-13 Bennett Miller 2011 4K Ultra HD

                      A Monster Calls Fantasy PG-13 J.A. Bayona 2016 Blu-ray quality

                      Monster Trucks Action PG Chris Wedge 2016 4K HDR

                      Monsters vs. Aliens Animated PG Rob Letterman 2009 Blu-ray quality

                      Monsters, Inc. Animated G Pete Docter 2001 Blu-ray quality

                      Monty Python: Live (Mostly) — One Down, Five to Go Comedy NR-R Eric Idle 2014 Blu-ray quality

                      Morgan Thriller R Luke Scott 2016 4K HDR

                      Mother! Drama R Darren Aronofsky 2017 4K HDR

                      The Mountain Between Us Romance PG-13 Hany Abu-Assad 2017 4K HDR

                      Moving Art: Deserts Nature NR-G Louie Schwartzberg 2015 4K Ultra HD

                      Moving Art: Flowers Nature NR-G Louie Schwartzberg 2015 4K Ultra HD

                      Moving Art: Forests Nature NR-G Louie Schwartzberg 2015 4K Ultra HD

                      Moving Art: Oceans Nature NR-G Louie Schwartzberg 2015 4K Ultra HD

                      The Mummy Action PG-13 Alex Kurtzman 2017 4K HDR

                      The Mummy Returns Action PG-13 Stephen Sommers 2001 Blu-ray quality

                      The Mummy: Tomb of the Dragon Emperor Action PG-13 Rob Cohen 2008 Blu-ray quality

                      Murder on the Orient Express Drama PG-13 Kenneth Branagh 2017 4K HDR

                      Murder, My Sweet Film Noir NR-G Edward Dmytryk 1944 Blu-ray quality

                      A MusiCares Tribute to Carole King Music NR-G Leon Knoles 2014 Blu-ray disc

                      Mutiny on the Bounty Drama NR-R Lewis Milestone 1962 Blu-ray quality

                      My Best Friend's Wedding Comedy PG-13 P.J. Hogan 1997 4K Ultra HD

                      My Life As a Zucchini Animated PG-13 Claude Barras 2016 Blu-ray quality

                      My Name Is Nobody Western PG Tonino Valerii 1974 Blu-ray quality

                      Mysterious Island Adventure NR-G Cy Endfield 1961 DVD quality

                      The Narrow Margin Drama NR-R Richard Fleischer 1952 DVD quality

                      Neat: The Story of Bourbon Documentary NR-R David M. Altrogge 2017 4K Ultra HD

                      Need for Speed Action PG-13 Scott Waugh 2014 Blu-ray quality

                      Neruda Drama R Pablo Larraín 2016 Blu-ray quality

                      Nerve Thriller PG-13 Henry Joost 2016 Blu-ray quality

                      New Jack City Crime R Mario Van Peebles 1991 Blu-ray quality

                      The Nice Guys Comedy R Shane Black 2016 4K HDR

                      The Night Before Holiday R Jonathan Levine 2015 4K HDR

                      Night Editor / One Girl's Confession Film Noir NR-R Henry Levin 1946 DVD

                      Nightcrawler Thriller R Dan Gilroy 2014 Blu-ray quality

                      Nm Soft Machine Music NR-R DVD

                      No Quarter: Jimmy Page & Robert Plant - Unledded Music NR-R 1995 DVD

                      Now You See Me 2 Thriller PG-13 Jon M. Chu 2016 Blu-ray quality

                      Oblivion Sci-Fi PG-13 Joseph Kosinski 2013 Blu-ray quality

                      The Odessa File Thriller PG Ronald Neame 1974 DVD quality

                      Office Christmas Party Holiday NR-R Will Speck 2016 Blu-ray quality

                      On Her Majesty's Secret Service Spy PG Peter Hunt 1969 Blu-ray disc

                      On the Waterfront Drama NR-R Elia Kazan 1954 4K Ultra HD

                      Only the Brave Drama PG-13 Joseph Kosinski 2017 4K HDR

                      Open Range Western R Kevin Costner 2003 Blu-ray quality

                      Operator Drama NR-R Logan Kibens 2016 Blu-ray quality

                      OSS 117: Lost in Rio Comedy NR-R Michel Hazanavicius 2009 Blu-ray quality

                      The Other Guys Comedy NR-R Adam McKay 2010 4K Ultra HD

                      Ouija: Origin of Evil Horror PG-13 Mike Flanagan 2016 Blu-ray quality

                      Our Brand Is Crisis Comedy R David Gordon Green 2015 4K HDR

                      Our Kind of Traitor Drama R Susanna White 2016 Blu-ray quality

                      Out of the Past Crime NR-G Jacques Tourneur 1947 Blu-ray quality

                      The Outfit Crime PG John Flynn 1973 DVD quality

                      Oz the Great and Powerful Fantasy PG Sam Raimi 2013 Blu-ray quality

                      Pacific Rim Sci-Fi PG-13 Guillermo del Toro 2013 4K HDR

                      Pan Fantasy PG Joe Wright 2015 4K HDR

                      Paradigm Lost Documentary NR-R Kai Lenny 2017 4K Ultra HD

                      ParaNorman Animated PG Chris Butler 2012 Blu-ray quality

                      Party Girl Crime NR-R Nicholas Ray 1958 DVD quality

                      Passengers Sci-Fi PG-13 Morten Tyldum 2016 4K HDR

                      Pat Metheny Group: The Way Up - Live Music NR-R Steve Rodby 2006 DVD

                      Pat Metheny Group: We Live Here — Live in Japan Music NR-R Takayuki Watanabe 1995 DVD

                      Pat Metheny: The Unity Sessions Music NR-R 2015 Blu-ray quality

                      Paterson Drama R Jim Jarmusch 2016 Blu-ray quality

                      The Patriot Drama R Roland Emmerich 2000 4K Ultra HD

                      Patriots Day Drama R Peter Berg 2016 Blu-ray quality

                      Paul Blart: Mall Cop 2 Comedy PG Andy Fickman 2015 4K Ultra HD

                      The Peanuts Movie Animated G Steve Martino 2015 4K HDR

                      Pearl Harbor War PG-13 Michael Bay 2001 Blu-ray quality

                      The People vs. Fritz Bauer Drama R Lars Kraume 2015 Blu-ray quality

                      The Perfect Guy Drama PG-13 David M. Rosenthal 2015 4K Ultra HD

                      Pete Townshend's Classic Quadrophenia: Live from the Royal Albert Hall Music NR-R Matthew Amos 2015 Blu-ray disc

                      Pete's Dragon Adventure PG David Lowery 2016 Blu-ray quality

                      Peter Frampton: Frampton Comes Alive! Music NR-R 1976 DVD

                      Peter Frampton: Live in Detroit Music NR-G Scott Bishop 1999 Blu-ray quality

                      Peter Gabriel: New Blood — Live in London Music NR-R Blue Leach 2011 Blu-ray disc

                      Phil Collins: Live at Montreux 2004 Music NR-G Claude Nobs 2004 Blu-ray quality

                      Pineapple Express Comedy R David Gordon Green 2008 4K HDR

                      Pink: The Truth About Love Tour - Live from Melbourne (AU/NZ Version) Music NR-R Larn Poland 2013 Blu-ray quality

                      Pirates of the Caribbean: Dead Men Tell No Tales Adventure PG-13 Joachim Rønning 2017 Blu-ray quality

                      Pitch Black (Director's Cut) Sci-Fi NR-R David Twohy 2000 Blu-ray quality

                      Pitch Perfect Comedy PG-13 Jason Moore 2012 4K HDR

                      Pitch Perfect 2 Comedy PG-13 Elizabeth Banks 2015 4K HDR

                      Pixels Action PG-13 Chris Columbus 2015 Multiple

                      Planet of the Apes Sci-Fi G Franklin J. Schaffner 1968 Blu-ray quality

                      The Planets: An HD Odyssey Classical NR-G Hans Graf 2009 Blu-ray disc

                      Point Break Action PG-13 Ericson Core 2015 4K HDR

                      Point Break Action R Kathryn Bigelow 1991 Blu-ray quality

                      The Police: Certifiable - Live in Buenos Aires Music NR-R Jim Gable 2007 Blu-ray disc

                      Poltergeist Horror NR-R Gil Kenan 2015 4K HDR

                      Ponyo Bd NR-R Blu-ray disc

                      Pretenders: Pretenders Loose in L.A. Music NR-R Brian Lockwood 2003 Blu-ray disc

                      Pride + Prejudice + Zombies Action PG-13 Burr Steers 2016 4K HDR

                      The Private Lives of Elizabeth and Essex Drama NR-R Michael Curtiz 1939 DVD quality

                      The Professionals Western PG-13 Richard Brooks 1966 Blu-ray quality

                      Prometheus Sci-Fi R Ridley Scott 2012 4K HDR

                      Pulp Fiction Drama R Quentin Tarantino 1994 Blu-ray quality

                      The Purge Horror R James DeMonaco 2013 4K HDR

                      The Purge: Anarchy Horror R James DeMonaco 2014 4K HDR

                      The Purge: Election Year Horror R James DeMonaco 2016 4K HDR

                      Queen of Outer Space Sci-Fi NR-R Edward Bernds 1958 DVD quality

                      Queen: Hungarian Rhapsody — Live in Budapest Music NR-R János Zsombolyai 1986 Blu-ray quality

                      Quentin Durward Adventure NR-R Richard Thorpe 1955 DVD quality

                      Quiero la cabeza de Alfredo García Drama R Sam Peckinpah 1974 Blu-ray disc

                      R.I.P.D. Action PG-13 Robert Schwentke 2013 Blu-ray quality

                      Ratatouille Animated G Brad Bird 2007 Blu-ray quality

                      The Red Turtle Animated PG Michael Dudok de Wit 2016 Blu-ray quality

                      Resident Evil Horror R Paul W.S. Anderson 2002 4K HDR

                      Resident Evil: Afterlife Horror R Paul W.S. Anderson 2010 4K HDR

                      Resident Evil: Retribution Horror R Paul W.S. Anderson 2012 Blu-ray quality

                      Resident Evil: The Final Chapter Horror R Paul W.S. Anderson 2016 4K HDR

                      Resident Evil: Vendetta Animated R Takanori Tsujimoto 2017 4K HDR

                      Return to Forever: Returns — Live at Montreux 2008 Music NR-G Christine Strand 2008 Blu-ray disc

                      The Revenant Adventure R Alejandro González Iñárritu 2015 4K HDR

                      Rick Wakeman Journey to the Center of The Earth Concert DVD Music NR-R DVD

                      Rick Wakeman: Journey to the Centre of the Earth Music NR-R 1974 DVD

                      Rick Wakeman: Made in Cuba NR-R 2005 DVD

                      Riddick Sci-Fi NR-R David Twohy 2013 Blu-ray quality

                      Rise of the Guardians Animated PG Peter Ramsey 2012 Blu-ray quality

                      Rise of the Planet of the Apes Sci-Fi PG-13 Rupert Wyatt 2011 4K HDR

                      Riverside: Love, Fear and the Time Machine NR-R 2015 DVD

                      The Road Warrior Action R George Miller 1981 Blu-ray quality

                      Robin Hood (Director's Cut) Adventure NR-R Ridley Scott 2010 Blu-ray quality

                      The Rock Action R Michael Bay 1996 Blu-ray quality

                      Rocky Mountain Express Documentary NR-G Stephen Low 2011 4K HDR

                      Rod Stewart: One Night Only! — Live At The Royal Albert Hall Music NR-R David Mallet 2004 Blu-ray quality

                      Roger Waters: Amused to Death Music NR-R 1992 Blu-ray disc

                      Roger Waters: The Wall Documentary R Sean Evans 2014 Blu-ray quality

                      Rogue One: A Star Wars Story Action PG-13 Gareth Edwards 2016 Blu-ray quality

                      The Rolling Stones: Olé Olé Olé! — A Trip Across Latin America Documentary NR-R Paul Dugdale 2016 Blu-ray quality

                      Roman J. Israel, Esq. Drama PG-13 Dan Gilroy 2017 4K HDR

                      Romancing the Stone Adventure PG Robert Zemeckis 1984 Blu-ray quality

                      Rough Night Comedy R Lucia Aniello 2017 4K HDR

                      Rules Don't Apply Drama PG-13 Warren Beatty 2016 Blu-ray quality

                      Run All Night Action R Jaume Collet-Serra 2015 4K HDR

                      Rush Drama R Ron Howard 2013 Blu-ray quality

                      Saban's Power Rangers Action PG-13 Dean Israelite 2017 Blu-ray quality

                      Sade: Bring Me Home — Live 2011 Music NR-R Sophie Muller 2011 Blu-ray quality

                      Salt (Director's Cut) Spy NR-R Phillip Noyce 2010 4K HDR

                      San Andreas Action PG-13 Brad Peyton 2015 4K HDR

                      Sanctum Adventure R Alister Grierson 2011 Blu-ray quality

                      Santana & McLaughlin: Live at Montreux Music NR-R 2011 Blu-ray disc

                      Santana IV: Live at The House of Blues, Las Vegas Music NR-R Brad Fuss 2016 Blu-ray quality

                      Santana: Corazón Live from Mexico Music NR-R Nick Wickham 2013 Blu-ray quality

                      Santana: Hymns for Peace - Live at Montreux 2004 Music NR-R 2004 Blu-ray disc

                      Santana: Shaman Music NR-R 2002 DVD

                      Sausage Party Animated R Greg Tiernan 2016 4K HDR

                      Scaramouche Adventure NR-G George Sidney 1952 DVD quality

                      Scene of the Crime Film Noir NR-R Roy Rowland 1949 DVD quality

                      The Scorpion King Action PG-13 Chuck Russell 2002 Blu-ray quality

                      The Sea Hawk Action NR-G Michael Curtiz 1940 DVD quality

                      The Sea Wolves NR-R Blu-ray disc

                      The Sea Wolves Action PG Andrew V. McLaglen 1980 DVD quality

                      The Secret Life of Pets Animated PG Chris Renaud 2016 Multiple

                      The Secret World Of Arrietty NR-R Blu-ray disc

                      The Seeventh Voyage of Sinbad Action G Nathan Juran 1958 Blu-ray quality

                      Serenity Sci-Fi PG-13 Joss Whedon 2005 4K HDR

                      The Set-Up Drama NR-G Robert Wise 1940 DVD quality

                      Seven Days in May Thriller TV-14 John Frankenheimer 1964 Blu-ray quality

                      The Seven-Ups Action NR-R Philip D'Antoni 1973 DVD

                      Sgt. Pepper's Lonely Hearts Club Band Music NR-G 1967 Blu-ray disc

                      The Shallows Thriller PG-13 Jaume Collet-Serra 2016 4K HDR

                      The Shape of Water Drama R Guillermo del Toro 2017 4K HDR

                      Sherlock Holmes Action PG-13 Guy Ritchie 2009 4K HDR

                      Sherlock Holmes: A Game of Shadows Action PG-13 Guy Ritchie 2011 4K HDR

                      Shoot 'Em Up Action R Michael Davis 2007 Blu-ray quality

                      Shot Caller Crime R Ric Roman Waugh 2017 Blu-ray quality

                      Shout at the Devil Action PG Peter R. Hunt 1976 Blu-ray disc

                      Shrek Forever After Animated PG Mike Mitchell 2010 Blu-ray quality

                      Sicario Crime R Denis Villeneuve 2015 Blu-ray quality

                      Silver Streak Action PG Arthur Hiller 1976 Blu-ray quality

                      Simon Rattle: A Musical Journey in 3D — Singapore Classical NR-R 2010 Blu-ray disc

                      Sin City: A Dame to Kill For Action R Robert Rodriguez 2014 Blu-ray quality

                      Sing Animated PG Garth Jennings 2016 Multiple

                      Sky Riders Adventure PG Douglas Hickox 1976 Blu-ray disc

                      Skyfall Spy PG-13 Sam Mendes 2012 Blu-ray disc

                      Sleepless Action R Baran bo Odar 2017 Blu-ray quality

                      Sleight Crime R J.D. Dillard 2016 Blu-ray quality

                      Sm Sitr Hfpa Music NR-R Blu-ray disc

                      The Smurfs Comedy PG Raja Gosnell 2011 4K HDR

                      The Smurfs 2 Comedy PG Raja Gosnell 2013 4K HDR

                      Smurfs: The Lost Village Animated PG Kelly Asbury 2017 4K HDR

                      Snatched Comedy R Jonathan Levine 2017 4K HDR

                      Snitch Drama PG-13 Ric Roman Waugh 2013 Blu-ray quality

                      Snow White & the Huntsman Fantasy NR-R Rupert Sanders 2012 Blu-ray quality

                      So I Married an Axe Murderer Comedy PG-13 Thomas Schlamme 1993 DVD quality

                      Só Pra Contrariar: Acústico Music NR-G Sérgio Bittencourt 2002 DVD

                      Sojourns Nature NR-G Mark Andersen 2013 4K Ultra HD

                      Sorcerer Thriller PG William Friedkin 1977 DVD

                      The Sound of Music Musical G Robert Wise 1965 Blu-ray quality

                      Space Junk Documentary NR-R Melissa R. Butts 2012 4K Ultra HD

                      Speed Racer Action PG Andy Wachowski 2008 Blu-ray quality

                      Spider-Man Action PG-13 Sam Raimi 2002 4K Ultra HD

                      Spider-Man 2 Action PG-13 Sam Raimi 2004 4K HDR

                      Spider-Man 3 Action PG-13 Sam Raimi 2007 4K Ultra HD

                      Spider-Man: Homecoming Action PG-13 Jon Watts 2017 4K HDR

                      Spirited Away Anime PG Hayao Miyazaki 2002 Blu-ray disc

                      Split Thriller PG-13 M. Night Shyamalan 2016 4K HDR

                      Spy Spy R Paul Feig 2015 4K HDR

                      Stagecoach Western NR-G John Ford 1939 DVD

                      The Star Holiday PG Timothy Reckart 2017 4K HDR

                      Star Trek Sci-Fi PG-13 J.J. Abrams 2009 Blu-ray disc

                      Star Trek: Into Darkness Sci-Fi PG-13 J.J. Abrams 2013 Blu-ray disc

                      Star Wars Episode I: The Phantom Menace Sci-Fi PG George Lucas 1999 Blu-ray quality

                      Star Wars Episode II: Attack of the Clones Sci-Fi PG George Lucas 2002 Blu-ray quality

                      Star Wars Episode III: Revenge of the Sith Sci-Fi PG-13 George Lucas 2005 Blu-ray quality

                      Star Wars Episode IV: A New Hope Sci-Fi PG George Lucas 1977 Blu-ray quality

                      Star Wars Episode V: The Empire Strikes Back Sci-Fi PG Irvin Kershner 1980 Blu-ray quality

                      Star Wars Episode VI: Return of the Jedi Sci-Fi PG Richard Marquand 1983 Blu-ray quality

                      Star Wars Episode VII: The Force Awakens Sci-Fi PG-13 J.J. Abrams 2015 Blu-ray quality

                      Starship Troopers Sci-Fi R Paul Verhoeven 1997 4K HDR

                      Steely Dan: Everything Must Go Music NR-R 2003 DVD

                      Steely Dan: Gaucho Music NR-R 1980 DVD

                      Steely Dan: Two Against Nature Music NR-G Earle Sebastian 2000 DVD

                      Step Up All In Drama PG-13 Trish Sie 2014 Blu-ray quality

                      Storks Animated PG Nicholas Stoller 2016 4K HDR

                      Suburbicon Drama R George Clooney 2017 4K HDR

                      Sucker Punch Action R Zack Snyder 2011 4K HDR

                      Suicide Squad Action PG-13 David Ayer 2016 4K HDR

                      Sully Drama PG-13 Clint Eastwood 2016 4K HDR

                      Super Furry Animals: Rings Around the World Music NR-R 2001 DVD

                      Superbad Comedy NR-R Greg Mottola 2007 Blu-ray quality

                      Superman: Unbound Animated PG-13 James Tucker 2013 Blu-ray quality

                      Supertramp: Live in Paris '79 Music NR-R Peter Clifton 1979 Blu-ray disc

                      Suspicion Suspense NR-R Alfred Hitchcock 1941 Blu-ray quality

                      Swiss Family Robinson Adventure G Ken Annakin 1960 DVD

                      T2 Trainspotting Drama R Danny Boyle 2017 4K HDR

                      Talladega Nights: The Ballad of Ricky Bobby Comedy PG-13 Adam McKay 2006 4K Ultra HD

                      Taxi Driver Drama R Martin Scorsese 1976 4K Ultra HD

                      Teenage Mutant Ninja Turtles Action PG-13 Jonathan Liebesman 2014 Blu-ray quality

                      Teenage Mutant Ninja Turtles: Out of the Shadows Action PG-13 Dave Green 2016 4K HDR

                      The Ten Commandments Epic G Cecil B. DeMille 1956 Blu-ray quality

                      Terminal Velocity Action PG-13 Deran Sarafian 1994 Blu-ray disc

                      Terminator 2: Judgment Day Action NR-R James Cameron 1991 Blu-ray quality

                      Thank You for Your Service Drama R Jason Hall 2017 4K HDR

                      There's No Business Like Show Business Musical NR-G Walter Lang 1954 Blu-ray quality

                      They Came to Rob Las Vegas Crime R Antonio Isasi-Isasmendi 1968 DVD quality

                      They Made Me a Fugitive Crime NR-G Alberto Cavalcanti 1947 Blu-ray quality

                      Think Like a Man Comedy PG-13 Tim Story 2012 4K Ultra HD

                      This Is Cinerama Documentary G Robert L. Bendick 1952 Blu-ray disc

                      This Is the End Comedy R Seth Rogen 2013 4K Ultra HD

                      Thor: Ragnarok Fantasy PG-13 Taika Waititi 2017 Blu-ray quality

                      Three Billboards Outside Ebbing, Missouri Drama R Martin McDonagh 2017 4K HDR

                      The Three Stooges in 3D NR-R Jules White 1950 Blu-ray disc

                      Thunderball Spy PG Terence Young 1965 Blu-ray disc

                      Time After Time Sci-Fi PG Nicholas Meyer 1979 DVD quality

                      The Time Machine Sci-Fi G George Pal 1960 DVD quality

                      To Have and Have Not Drama NR-G Howard Hawks 1944 Blu-ray quality

                      Todd Rundgren: An Evening with Todd Rundgren — Live at the Ridgefield Music NR-R 2015 Blu-ray disc

                      Todd Rundgren: Bootleg Series Vol 1 — Live at the Forum, London '94 Music NR-R 1994 DVD

                      Todd Rundgren: Liars Music NR-R 2004 DVD

                      Tom Thumb Musical G George Pal 1958 DVD quality

                      Tomorrowland Sci-Fi PG Brad Bird 2015 Blu-ray quality

                      Too Late for Tears Drama NR-R Byron Haskin 1949 Blu-ray disc

                      Top Gun Action PG Tony Scott 1986 Blu-ray quality

                      Torment Drama NR-R Claude Chabrol 1994 Blu-ray quality

                      Torn Curtain Spy PG Alfred Hitchcock 1966 Blu-ray quality

                      Total Recall Sci-Fi R Paul Verhoeven 1990 Blu-ray quality

                      Total Recall Sci-Fi PG-13 Len Wiseman 2012 4K Ultra HD

                      Toto: Live at Montreux 1991 Music NR-G 1991 Blu-ray quality

                      Tough Assignment Film Noir NR-R William Beaudine 1949 DVD

                      The Tourist Spy PG-13 Florian Henckel von Donnersmarck 2010 4K Ultra HD

                      The Town Crime R Ben Affleck 2010 4K HDR

                      Trainspotting Drama R Danny Boyle 1996 Blu-ray quality

                      Transformers Action PG-13 Michael Bay 2007 4K HDR

                      Transformers: Age of Extinction Action PG-13 Michael Bay 2014 4K HDR

                      Transformers: Dark of the Moon Action PG-13 Michael Bay 2011 4K HDR

                      Transformers: Revenge of the Fallen Action PG-13 Michael Bay 2009 4K HDR

                      Transformers: The Last Knight Action PG-13 Michael Bay 2017 4K HDR

                      Treasure Island Family G Byron Haskin 1950 Blu-ray quality

                      Tremors Horror PG-13 Ron Underwood 1990 Blu-ray quality

                      Trolls Animated PG Mike Mitchell 2016 Blu-ray quality

                      Tron: Legacy Sci-Fi PG Joseph Kosinski 2010 Blu-ray quality

                      A Turtle's Tale 2: Sammy's Escape from Paradise Animated NR-G Ben Stassen 2012 Blu-ray disc

                      The Ugly Truth Comedy R Robert Luketic 2009 4K Ultra HD

                      The Ultimate Wave: Tahiti Documentary NR-G Stephen Low 2010 4K Ultra HD
                      https://twitter.com/CINERAMAX<br /><br />https://WALLSCREEN-SKYLOUNGES.COM

                      Comment


                      • #26
                        Making these changes but woodwork not finalized ...
                        Attached Files
                        https://twitter.com/CINERAMAX<br /><br />https://WALLSCREEN-SKYLOUNGES.COM

                        Comment


                        • #27
                          https://youtu.be/b3k0m5sM6lQ
                          https://twitter.com/CINERAMAX<br /><br />https://WALLSCREEN-SKYLOUNGES.COM

                          Comment


                          • #28
                            we are delayed by 3 weeks and still not loving it. The overhead immersion canopy hull shape.

                            Attached Files
                            https://twitter.com/CINERAMAX<br /><br />https://WALLSCREEN-SKYLOUNGES.COM

                            Comment


                            • #29
                              https://twitter.com/CINERAMAX<br /><br />https://WALLSCREEN-SKYLOUNGES.COM

                              Comment


                              • #30
                                Delay, was anticipated, so you'll still be ready (be)for CEDIA 2018?

                                Comment

                                Working...
                                X